貸店舗
居抜き
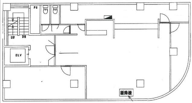
ニュータウンビル 4階
【紺屋町カド】4階★35.9坪★居抜き★エレベーター有★内覧できます★お問い合わせは株式会社オチアイまでお気軽にどうぞ
※ 仲介手数料は家賃1ヶ月+消費税を頂戴しております


株式会社オチアイは「静岡まちなか不動産」として、主に静岡市中心市街地の事業用物件に関し、仲介・管理・コンサルティングを行っています。
まずは、お気軽にご相談ください。不動産に関する高い専門性と真摯な姿勢で、お客様同士をうしろ側からきちんと支え、直応邁進します。
各商業エリアの特徴や不動産データをご紹介
紺屋町はJR静岡駅北口の街中入口にある商店街。葵タワーやパルコ、小梳神社など街中のアイコンが集まる繁華街です。
呉服町は街中の中心地となる商店街。スクランブル交差点から本通までをつなぐ、流動人口も多い商業エリアです。
御幸町はJR静岡駅北口からのびる4車線道路を挟む商店街。紺屋町・呉服町から伝馬町方面への人で賑わいます。
追手町は、静岡県庁・静岡市役所・静岡赤十字病院を含めた主要公共インフラが集まるエリアです。
伝馬町は、新静岡セノバやKEYAKI PLAZA、MODI・駿河屋など、商業施設が集中し賑わうエリアです。
両替町は、静岡街中の夜を彩る歓楽街。飲食店や遊技施設が集まり、夜間の流動人口が最も多いエリアです。
青葉公園・常磐町は、街中中心地にある緑地公園。街歩きの休息場所としても愛されています。
七間町は、静岡伊勢丹から東宝映画館・水道局を結ぶ商店街。人宿町へとつながるエリアでもあります。